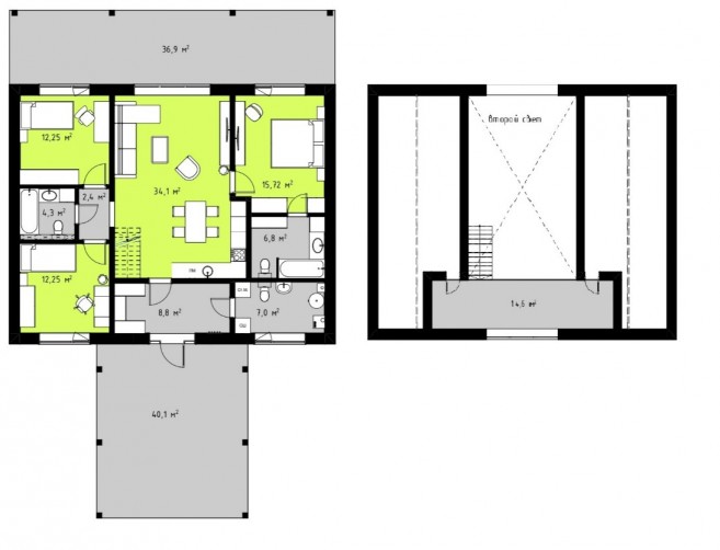
Дом функционально разделен на зоны кухни-гостиной, спального блока «детские» и спального блока «мастер спальни». Кухня-гостиная расположена в середине дома. Парковка для авто выполнена под навесом, рядом с главным входом в дом. Терраса находится под одной крышей с домом. Дом сдается в отделке white box. Гипсовая штукатурка Knauf под обои.
Дом: 118,1 кв.м (полезная площадь, без террасы и крыльца):
комплектация «тёплый контур»
Комплектация «white bох» от 13 670 000 р.
Выбор местоположения
Мы свяжемся с Вами в течение дня.